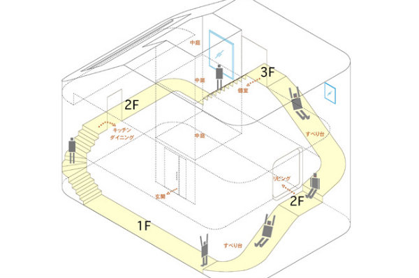
A empresa japonesa Level Architects projetou uma casa que toda criança adoraria morar. A residência, que fica em Tóquio, capital do Japão, é toda rodeada por um escorregador, que dá acesso a vários cômodos e andares. É só subir um lance de escadas e se jogar na descida, que você chega num corredor cheio de livros, por exemplo.
Confira mais imagens da casa abaixo:
Fonte:








0 comentários:
Postar um comentário
Antes de comentar, leia os termos de uso.
Não aprovamos os comentários:
1. não relacionados ao tema do post;
2. com pedidos de parceria;
3. com propagandas (spam);
4. com palavrões ou ofensas a pessoas e marcas;